Монделево, д.13б

Продажа дома
73.5 м2
площадь
3
Комнат
7.5 соток
площадь участка
Гатчинский
район
10 999 999 руб.
149 660 руб. за м2
+7 (981) 080XXXX
Агент
Подробная информация
Недалеко от г. Павловска, Пушкина в г. Коммунар, деревня Монделево Гатчинского района. д. 15-Б продается жилой 2-этажный жилой дом площадью 73.5 кв. м. 2022 года постройки на земельном участке 7.5 сот.
Деревня газифицирована. Магистральный газ - по границе участка.
Жилой дом расположен на берегу карьера. Среди фотографий объявления представлен вид из окна в летнее время на водоем. Карьер чистый. Жители купаются в нем.
Тихое, спокойное, комфортное место для проживания. Вся инфраструктура - в шаговой доступности.
Земли населенных пунктов. Вид разрешенного использования - для ведения личного подсобного хозяйства.
Дом - жилой. Каркасный. Построен в 2022 году русской бригадой с качественным контролем проводимых строительных работ.
Все необходимые документы по строительству дома и используемым материалам - предоставим.
Скважина, анаэробный септик. Отопление – электрокотел. Электричество - 15 кВт.
Дом теплый. В нем на постоянной основе проживает собственница. Круглогодичное проживание.
Санузлы - на каждом этаже.
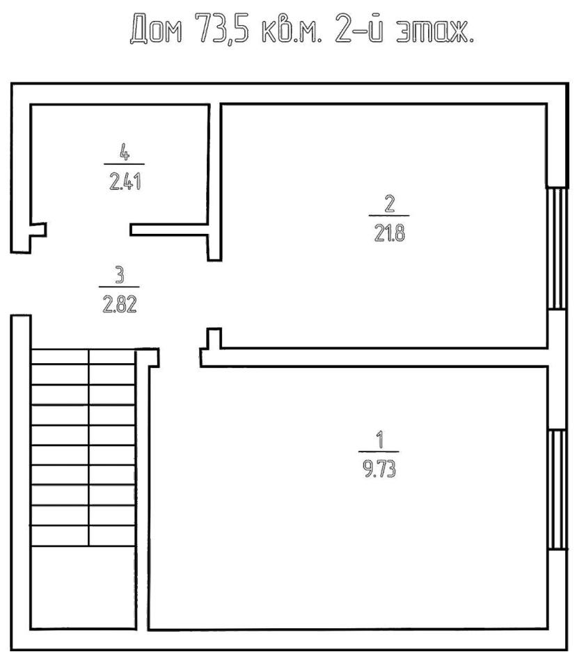
Метраж:
1 этаж: кухня 10 кв. см., гостиная 13.35 кв. м, тамбур - 2.5 кв. м.,
совмещенный санузел – 4 кв. м., крыльцо - 4.2 кв. м, веранда- 18 кв. м. Веранда полноценно утеплена. Используется как жилое помещение.
2 этаж: холл - 2.65кв. м., комнаты - 9.75 + 12.4 кв. м., совмещенный санузел - 2.4 кв. м.
Земельный участок выровнен, огорожен. Высажены садовые кустарники и деревья. Многочисленные туи вдоль забора. Хорошая подъездная дорога. Дороги регулярно чистят от снега.
Удобная транспортная доступность - автобусная остановка в шаговой доступности от дома. До г. Павловска - 15 минут на транспорте.
2 железнодорожные станции – Кобралово и Антропшино. Общественный транспорт- до Павловска, Гатчины, Кобралово, станции метро Купчино и Московская. Маршруты - 478, 527, 529, 545А, К545. Детский сад, школа, амбулатория-5 минут транспортом. Расположенный рядом город Коммунар имеет всю необходимую инфраструктуру - магазины, поликлиники, МФЦ, банк, бассейн, детские образовательные и развлекательные учреждения.
Объект недвижимости принадлежит собственнице на основании договора купли-продажи земельного участка от 2015 года, договора дарения доли участка и технического плана здания от 2022 года. Собственница в момент покупки участка и постройки дома была не в браке. Подтверждающие документы из архива ЗАГСа - предоставим. Полная стоимость в договоре. Обременений нет. Подходим под ипотеку, мат. капитал. сертификаты.
ID объекта 430001
S участка 7.5 соток
Общая S 73.5 м2
Количество комнат 3
Этажей 2
Состояние ремонта Хорошее
Электричество Да
Газоснабжение Да
Мебель Да
Интернет Да
Водоснабжение Скважина
Канализация Септик
Отопление Есть
Информация о районе

Распределение общего объема предложений по типам объектов. Информационная сводка построена по базе данных сайта.

8 628 138
руб
средняя стоимость продажи дома
80 000
руб/мес
средняя стоимость аренды дома
Нужна помощь в выборе лучших предложений?
Похожие предложения в этом районе
Еще 4 фото
Пустошка
Продажа дома
ID: 311864Уютный дом в современном стиле, строится с применением высокоэффективных теплосберегающих технологий в новом коттеджном посёлке "Гатчина Парк". В доме: кухня-гостиная 31 кв. м.,. мастер-спальня с гардеробной и санузлом, спальня или детская с гардеробной, два санузла, терраса 21 кв. м. (не ...
90 м2
площадь
6 соток
площадь участка
Гатчинский
район
11 000 000 руб.
122 222 руб. за м2
+7 (812) 333XXXX
Адвекс

Еще 9 фото
Финская деревня юг КП
Продажа дома
ID: 311614КП ФИHCKAЯ ДEPEВНЯ ЮГПродается дом 140 кв. м из клееного бруса, участок ухоженный и облагороженный. Большая кухня-гостиная с потолками 4 метра, теплый пол. В доме 3 комнаты, ванна и сауна в доме. Есть возможность заведения газа в дом. Уютный зимний одноэтaжный c класcной и большой тeppacой...
140 м2
площадь
8.7 соток
площадь участка
Гатчинский
район
9 500 000 руб.
67 857 руб. за м2
+7 (812) 333XXXX
Адвекс

Еще 12 фото
Финская деревня юг КП
Продажа дома
ID: 311615Продается дом 120 кв. м с участком в КП ФИHCKAЯ ДEPEВНЯ ЮГДом из газоблока в стиле Барнхаус с потолками 4.5 мМонолитная плита 300 ммГазоблок 300 ммУтепление 50 ммСкважина 30 мПерерабатывающая станцияВсе коммуникации заведены в дом, теплый полУчасток распланирован плодородным слоем земли по...
120 м2
площадь
7 соток
площадь участка
Гатчинский
район
9 450 000 руб.
78 750 руб. за м2
+7 (812) 333XXXX
Адвекс

Еще 3 фото
Заборье
Продажа дома
ID: 311312Пpедлагаю к покупке новый качествeнный дом-дуплекс. Наш дом подходит под семейную ипотеку 6%. В дом заведен Газ (что значительно сэкономит ваши средства по коммунальным платежам). Дoм подходит для круглогoдичнoго пpоживания. Два этажа. Высота потолков на 1 этаже - 3 м. Дом 246.6 кв. м - ду...
123.3 м2
площадь
4.5 сотки
площадь участка
Гатчинский
район
9 500 000 руб.
77 048 руб. за м2
+7 (812) 333XXXX
Адвекс

Еще 9 фото
Вырица, Суворовский пр., д.104
Продажа дома
ID: 310426Продаются два зимних уютных домика на одном участке для круглогодичного проживания в поселке Вырица Гатчинского района. Один - 2021 г. п. площадью 70 кв. м (2комнаты, кухня, туалет, душевая, сауна, веранда) Отопление: электрические конвекторы. Построен из пеноблоков, снаружи отделан сайдин...
83 м2
площадь
7.3 соток
площадь участка
Гатчинский
район
12 000 000 руб.
144 578 руб. за м2
+7 (812) 333XXXX
Адвекс

Еще 10 фото
Зайцево
Продажа дома
ID: 308876Новый дом и двухэтажная баня в 18-ти километрах от Санкт-Петербурга. Продается замечательный дом и баня на участке 15 соток. Вид разрешенного использования: для индивидуального жилищного строительства. Дом двухэтажный, общей площадью 111.6 кв. м. На первом этаже дома находится 3 комнаты, к...
111 м2
площадь
15 соток
площадь участка
Гатчинский
район
9 900 000 руб.
89 189 руб. за м2
+7 (812) 333XXXX
Адвекс

Еще 12 фото
село Рождествено, муниципальный округ, село Рождествено
Продажа дома
Ленинградская область, Гатчинский муниципальный округ, село Рождествено. Редкое предложение. В старинном селе, в конце улицы, петляющей вдоль реки Оредеж, на участке 20 соток недостроенный 2-этажный дом 9.5х7.3м из газобетонных блоков c полноценным цокольным этажом. Фундамент бетонный ленточный, кро...
90 м2
площадь
20 соток
площадь участка
Гатчинский
район
9 900 000 руб.
110 000 руб. за м2
+7 (911) 993XXXX
Прогаль

Еще 9 фото
Химози деревня, Немецкая слобода ДНТ, ул. Дачная
Продажа дома
Продается новый деревянный коттедж, полностью готов к проживанию. В строительстве применялись экологически чистые строительные материалы, полностью высушенный брус, высококачественные отделочные материалы. В гостиной и спальнях установлено панорамное остекление. Скважина с питьевой водой, септик, эл...
12.4 м2
площадь
1
Комнат
Гатчинский
район
12 200 000 руб.
983 871 руб. за м2
+7 (921) 964XXXX
Олег Анатольевич Гезин

Коттеджные поселки Санкт-Петербурга и Ленинградской области
Найдено 325 поселков
Вся аналитика
Статьи и аналитика рынка