Щеглово, д.31

Продажа дома
537 м2
площадь
20 соток
площадь участка
Всеволожский
район
21 000 000 руб.
39 106 руб. за м2
+7 (812) 333XXXX
Адвекс
Подробная информация
ID: 312347
Продаётся комплекс из двух капитальных кирпичных домов на смежных участках общей площадью 20.5 соток. Толщина стен домов — 2.5 кирпича. Просторное домовладение с зелёным участком и взрослыми деревьями, расположенное всего в 15 минутах езды от центра Всеволожска.
Общая площадь домов — 537 кв. м.
Участок и планировка позволяют комфортно использовать объект как для проживания большой семьи, так и для совмещения проживания и бизнеса.
Отличный вариант для:
• большой семьи с возможностью раздельного проживания
• дома с отдельным гостевым домом
• мини-гостиницы, частного пансионата, загородного офиса
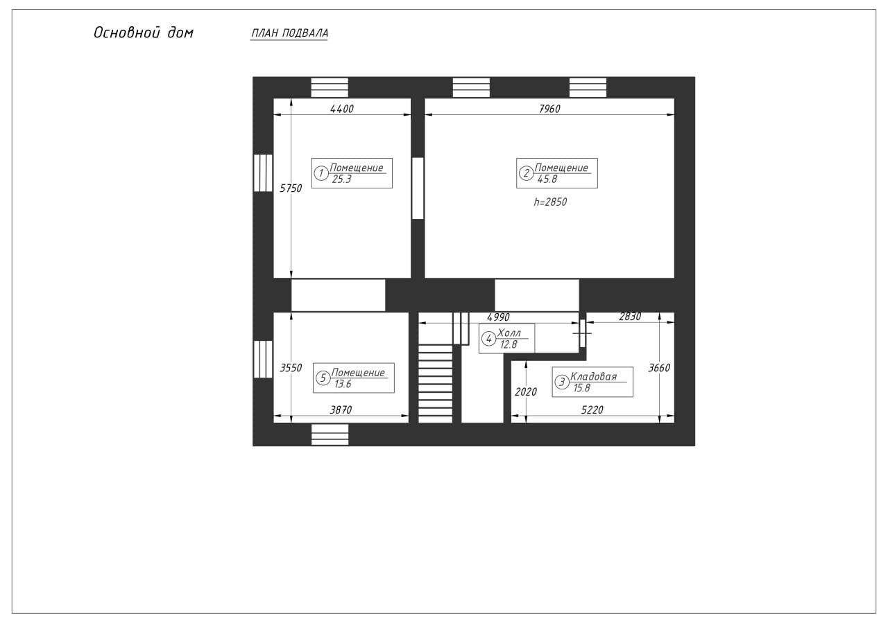
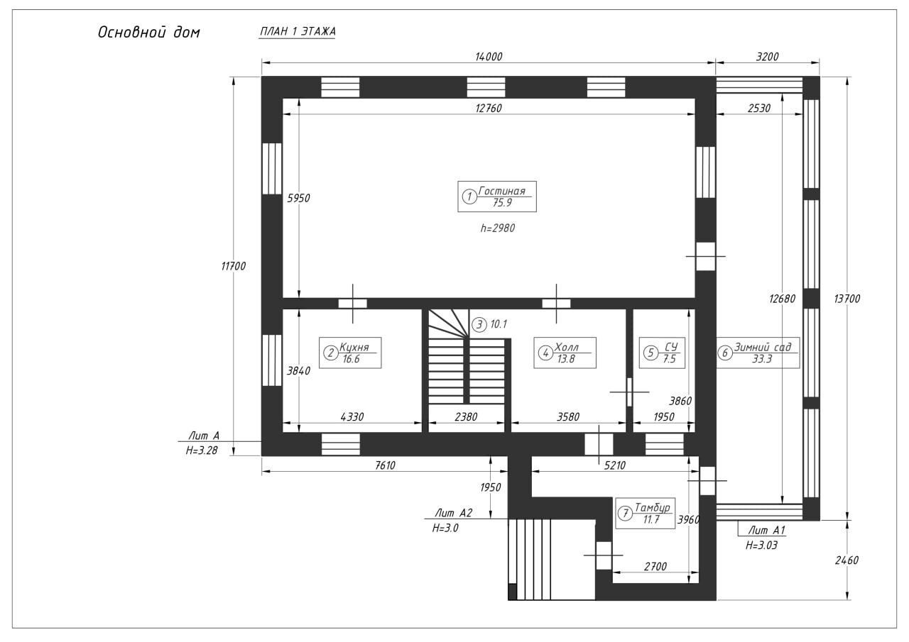
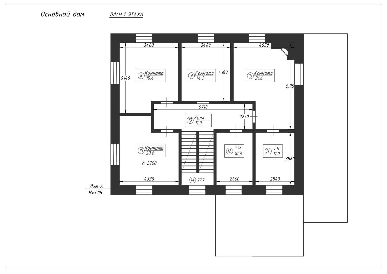
ОСНОВНОЙ ДОМ: Капитальный кирпичный дом для постоянного проживания площадью 397 кв. м.
Два жилых этажа и цокольный этаж.
• 4 спальни
• 3 санузла с душевыми
• просторная гостиная
• зимний сад
• отдельная кухня
• камин
Цокольный этаж использовался как:
• бильярдная
• зал для настольного тенниса
• спорт-зона
• большая кладовая
Дом требует косметического ремонта, что даёт возможность оформить интерьер полностью под себя. На фотоколлажах представлен дизайн-проект.
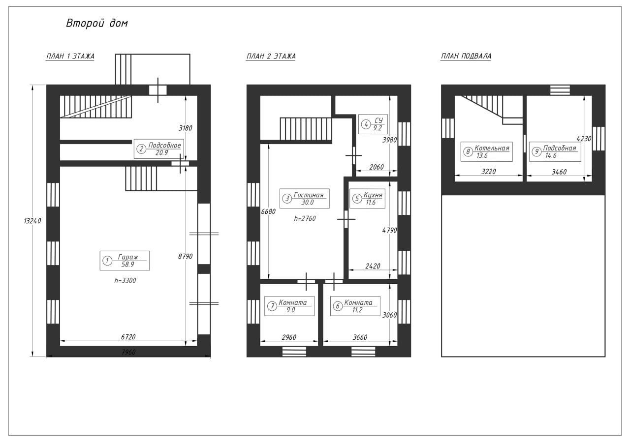
ГОСТЕВОЙ ДОМ: Отдельный дом с гаражом на 2 автомобиля площадью 140 кв. м.
В доме:
• 3 жилые комнаты
• санузел
• котельная
Можно использовать как:
• гостевой дом
• отдельное жилье для взрослых детей
• кабинет или студию
• арендный дом.
Черновая отделка.
КОММУНИКАЦИИ:
• магистральный газ
• два газовых котла (основной и резервный)
• электричество 30 кВт
• центральный водопровод + колодец
Капитальное и надёжное строительство.
НА УЧАСТКЕ:
• взрослые хвойные деревья
• плодовые деревья
• кустарники
• просторная зелёная территория.
Большая площадь участка обеспечивает приватность и комфорт.
ЛОКАЦИЯ: Удобное расположение рядом с Санкт-Петербургом.
• 15 минут до центра Всеволожска
• 7 минут до ж/д станций Щеглово и Романовка
• 35-40 минут до метро Ладожская.
Собственник один, никто не прописан, быстрый выход на сделку.
ID объекта 430896
Статус объекта ИЖС
S участка 20 соток
Общая S 537 м2
Жилая S 179.7 м2
S кухни 21 м2
Этажей 3
Состояние ремонта Косм. ремонт
Электричество Да
Газоснабжение Да
Канализация Нет
Отопление Нет
Информация о районе

Распределение общего объема предложений по типам объектов. Информационная сводка построена по базе данных сайта.

26 018 220
руб
средняя стоимость продажи дома
175 357
руб/мес
средняя стоимость аренды дома
Нужна помощь в выборе лучших предложений?
Похожие предложения в этом районе
Еще 28 фото
Аро дер., Короткая ул., д. 26
Продажа дома
ID: 312543Продаётся участок 15 соток с двухэтажным домом (2013 год постройки). Дом подходит для круглогодичного проживания и построен по индивидуальному проекту. Строение зарегистрировано как жилое — возможна прописка. Характеристики дома: • Планировка: продуманная, с кухней-гостиной и одной комнато...
163 м2
площадь
15 соток
площадь участка
Всеволожский
район
18 000 000 руб.
110 429 руб. за м2
+7 (812) 333XXXX
Адвекс

Еще 22 фото
Серебряный ручей СНТ, д. 521
Продажа дома
ID: 312431Лишь только зайдя на этот участок, появляется ощущение душевного тепла и уюта, ну и, конечно же, зайдя в дом - оно начинает только увеличиваться. Продается зарегистрированный жилой дом 135.4 кв. м + 51 кв. м - две террасы и два балкона. Явные плюсы: 1. Дом зарегистрирован, как жилой, "проп...
186.4 м2
площадь
7.9 соток
площадь участка
Всеволожский
район
20 950 000 руб.
112 393 руб. за м2
+7 (812) 333XXXX
Адвекс

Еще 59 фото
Ковалево пос., 4-я Жилая ул., д. 16
Продажа дома
ID: 310591Продаётся двухэтажный дом с мансардой и гаражом в пешей доступности от ЖД платформы Пост Ковалёво, в 10-ти минутах езды на автомобиле от улицы Коммуны. Непосредственно к участку ведёт асфальтированная дорога. Основной материал стен первого и второго этажей - керамзитобетон, стены мансарды ...
267 м2
площадь
13.36 соток
площадь участка
Всеволожский
район
22 500 000 руб.
84 270 руб. за м2
+7 (812) 333XXXX
Адвекс

Еще 19 фото
Омега ДНП, д. 33
Продажа дома
ID: 310415Продаётся хороший готовый дом с большим земельным участком рядом с городом. На участке 20 соток стоит дом на ленточном фундаменте (есть фотофиксация заливки фундамента 2016 год)Дом 1 этаж из бруса 150 мм, второй этаж каркас + брус, крыша утеплитель 50 см Шинглас, прекрасная мягкая кровля д...
253 м2
площадь
20 соток
площадь участка
Всеволожский
район
22 950 000 руб.
90 711 руб. за м2
+7 (812) 333XXXX
Адвекс

Еще 2 фото
Разметелево
Продажа дома
ID: 310018Продажа участок ижс с домом. Продается просторный двухэтажный дом 250 кв. м на участке 14.5 соток в 20 минутах от Санкт-Петербурга. В коттеджном поселке есть все коммуникации, газ, электричество, водопровод. Меньше километра до инфраструктуры н. п. Разметелево. Основная особенность дома - ...
250 м2
площадь
14.5 соток
площадь участка
Всеволожский
район
18 900 000 руб.
75 600 руб. за м2
+7 (812) 333XXXX
Адвекс

Еще 20 фото
Кискелово массив, Кискеловское снт
Продажа дома
ID: 311617В продаже новый (2024 г.) , построенный по индивидуальному проекту одноэтажный дом. Продаем, либо меняет на 3ккв с доплатой в Приморском районе. Строили под и для себя, с использованием высококачественных современных материалов. Дом достаточно просторный и эргономичный: большая гостинная, ...
122.3 м2
площадь
6 соток
площадь участка
Всеволожский
район
18 200 000 руб.
148 814 руб. за м2
+7 (812) 333XXXX
Адвекс

Еще 26 фото
Звезда СНТ, д. 430
Продажа дома
ID: 311359Продается теплый зимний дом, общей площадью 208 кв. м со всеми коммуникациями для постоянного проживания и участок, площадью 20 соток. В доме есть все для комфортной жизни. На 1 этаже дома находятся кухня-гостиная, спальня, кладовка и душевая комната. На 2 этаже располагаются три большие с...
208 м2
площадь
20 соток
площадь участка
Всеволожский
район
19 990 000 руб.
96 106 руб. за м2
+7 (812) 333XXXX
Адвекс

Еще 6 фото
Янино-2
Продажа дома
ID: 311040Предлагаем рассмотреть прекрасный вариант покупки недвижимости. Описание и фотографии соответствуют действительности. Коттедж в классическом стиле построен по индивидуальному проекту, с соблюдением СНиП для ИЖС. Солидный и привлекательный внешний вид сочетается с удачной внутренней планиро...
184 м2
площадь
14.06 соток
площадь участка
Всеволожский
район
21 000 000 руб.
114 130 руб. за м2
+7 (812) 333XXXX
Адвекс

Вся аналитика
Статьи и аналитика рынка