Анциферовская ул., д. 9, лит. В

Продажа квартиры
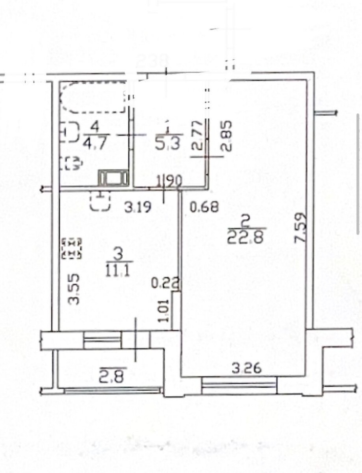
43.9 м2
площадь
1
Комнат
Пушкинский
район
9 980 000 руб.
227 335 руб. за м2
+7 (812) 333XXXX
Адвекс
Подробная информация
ID: 1916789
Уютная 1-комнатная квартира в престижном малоэтажном комплексе.
Продается замечательная однокомнатная квартира в одном из самых красивых и спокойных районов Санкт-Петербурга.
Планировка: Удачная и функциональная. Просторная комната правильной формы, удобная кухня, вместительная прихожая.
Этаж: 3-й - «золотая середина» (тепло, светло, отличные виды из окон).
Состояние: Сделан качественный ремонт, заезжай и живи».
Престижный малоэтажный комплекс: Камерная атмосфера, минимум соседей, высокий уровень безопасности и комфорта.
Экология: Гуммолосары - это экологически чистый район с чистейшим воздухом. Рядом парковые зоны и скверы, идеально для прогулок и отдыха от городской суеты.
Инфраструктура: Всё необходимое в шаговой доступности: продуктовые магазины, аптеки, кафе, школы и детские сады.
Парковка: Всегда есть возможность припарковать автомобиль без проблем.
Рядом расположена железнодорожная станция - быстрое и комфортное сообщение с центром Санкт-Петербурга без пробок.
Удобный выезд на основные магистрали.
Один взрослый собственник.
В собственности более 10 лет.
Полная стоимость в договоре, отсутствие налогов при покупке.
Быстрый выход на сделку, документы полностью готовы.
Дополнительные преимущества:
* Тихие и интеллигентные соседи.
* Высокие потолки и много естественного света.
* Отличный вариант как для собственного проживания, так и для сдачи в аренду.
Звоните, на все вопросы и организую просмотр в удобное для вас время. Не упустите шанс жить в историческом и престижном месте.
ID объекта 431080
Общая S 43.9 м2
Жилая S 22.8 м2
S кухни 11.1 м2
Количество комнат 1
Этаж 3
Этажей всего 5
Состояние ремонта Евроремонт
Балкон Есть лоджия
Информация о районе

Распределение общего объема предложений по типам объектов. Информационная сводка построена по базе данных сайта.

7 660 956
руб
средняя стоимость продажи квартиры
32 048
руб/мес
средняя стоимость аренды квартиры
Нужна помощь в выборе лучших предложений?
Похожие предложения в этом районе
Еще 4 фото
Шушары, Школьная ул., д.30
Продажа квартиры
ID: 1916705В продаже 3-х комнатная просторная квартира. Шикарное планировочное решение, окна выходят на две стороны. В квартире коридор 7.7 кв. м, с возможностью установить встроенный шкаф-купе для хранения верхней одежды, а так же в конце коридора можно организовать гардеробную. Изолированные прост...
60.5 м2
площадь
3
Комнат
Пушкинский
район
10 490 000 руб.
173 388 руб. за м2
+7 (812) 333XXXX
Адвекс

Еще 15 фото
Вишерская ул., д. 24 стр 1
Продажа квартиры
ID: 1916146В продаже двухкомнатная теплая, светлая квартира. Без срочных, крупных вложений. Большие изолированные комнаты. Кухня оборудована хорошей бытовой техникой. Развитый район, вся необходимая для жизни инфраструктура в пешей доступности. Школы, детские сады, поликлиники, магазины, банки, досу...
54.6 м2
площадь
2
Комнат
Пушкинский
район
9 550 000 руб.
174 908 руб. за м2
+7 (812) 333XXXX
Адвекс

Еще 20 фото
Кедринская ул., д. 8
Продажа квартиры
ID: 1916148Уникальное предложение. - Вы предпочитаете жить в теплой, просторной и уютной квартире с отличным ремонтом, в новом кирпичном доме, с доброжелательными соседями - эта квартира для Вас. - Квартира, практически евродвухкомнатная, площадью 45 кв. м. плюс утеплённая лоджия с розетками для инт...
45 м2
площадь
1
Комнат
Пушкинский
район
10 500 000 руб.
233 333 руб. за м2
+7 (812) 333XXXX
Адвекс

Еще 6 фото
Пушкин, Ленинградская ул., д.79/27
Продажа квартиры
ID: 1914576Предлагаем приобрести светлую и теплую квартиру в кирпичном 9-ти этажном доме, с очень удобным расположением в г. Пушкин. Мы также готовы рассмотреть обмен на однокомнатную квартиру (с доплатой) в городе Пушкин. Дом находится в пешей доступности ж/д станции Царское Село, рядом с домом авт...
55.7 м2
площадь
3
Комнат
Пушкинский
район
9 200 000 руб.
165 171 руб. за м2
+7 (812) 333XXXX
Адвекс

Еще 5 фото
Пушкин, Красносельское ш., д.45
Продажа квартиры
ID: 1913884В прямой продаже просторная трехсторонняя квартира в Пушкине. В квартире проведен евроремонт: установлены стеклопакеты, заменены двери, полы. По желанию покупателя остается мебель, стиральная и посудомоечная машины. Недалеко от дома расположены детские сады, школа, спортивные и детские пл...
56.8 м2
площадь
2
Комнат
Пушкинский
район
9 800 000 руб.
172 535 руб. за м2
+7 (812) 333XXXX
Адвекс

Еще 11 фото
Шушары, Первомайская ул., д.26А
Продажа квартиры
ID: 1912547Продается двухкомнатная квартира, расположенная по адресу: Санкт-Петербург, поселок Шушары, улица Первомайская, дом 26. Ближайшая станция метро — Купчино. Квартира находится на 15 этаже 24-этажного кирпично-монолитного дома, построенного в 2009 году. Общая площадь квартиры составляет 64 к...
64 м2
площадь
2
Комнат
Пушкинский
район
11 400 000 руб.
178 125 руб. за м2
+7 (812) 333XXXX
Адвекс

Еще 10 фото
Пушкин, Гусарская ул., д.4к3
Продажа квартиры
ID: 1910789В квартире продуманная планировка (планировка согласована, все изменения зарегистрированы), пространство задействовано по максимуму. Жилая площадь небольшая, т. к. при перепланировке комната была разделена на 2 части и во второй нет окна - поэтому она технически считается холлом. Сейчас т...
48.9 м2
площадь
1
Комнат
Пушкинский
район
8 900 000 руб.
182 004 руб. за м2
+7 (812) 333XXXX
Адвекс

Еще 8 фото
Пушкинский р-н, Шушары пос., Валдайская ул., 6, к. 1
Продажа квартиры
ID: 1910558Вашему вниманию представлена просторная 3к. квартира 82.3 кв. м в 10 минутах езды от м. Купчино. Комнаты большие и очень светлые, причём оконные проёмы больше чем в других ЖК. Напротив нет никаких нагромождений и вам открывается прекрасный вид на город. Дом находится рядом с выездом из Шу...
82.3 м2
площадь
3
Комнат
Пушкинский
район
9 800 000 руб.
119 077 руб. за м2
+7 (812) 333XXXX
Адвекс

Вся аналитика
Статьи и аналитика рынка