Славянская ул.

Продажа квартиры
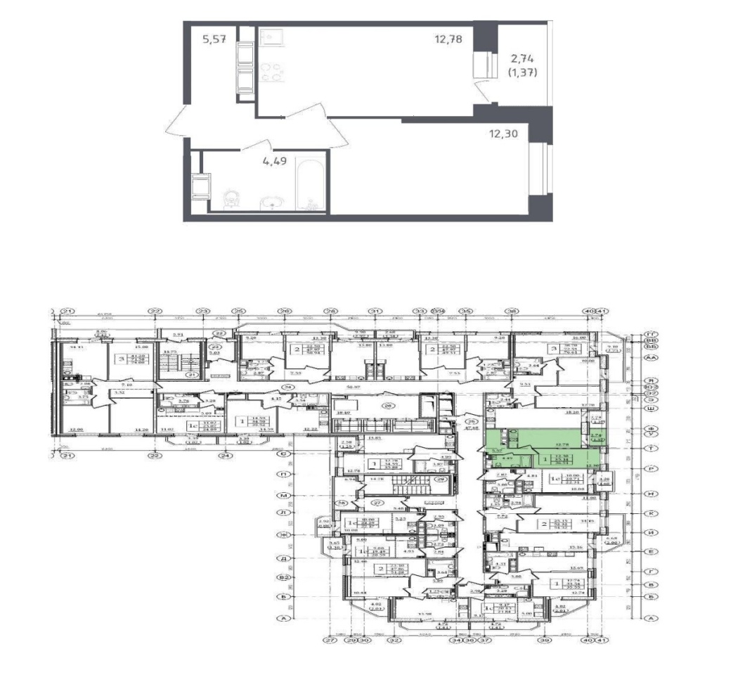
36.51 м2
площадь
1
Комнат
Невский
район
10 000 000 руб.
273 898 руб. за м2
+7 (812) 333XXXX
Адвекс
Подробная информация
ID: 353681
Продается, с прекрасным видом в сторону Невы, квартира:
- на 23 этаже, сверху нет соседей (никто не побеспокоит), при этом сверху полноценный тех. этаж
- окна квартиры выходят на восток - утреннее солнце (направление окон указано оранжевой стрелкой, а также на первом фото указано расположение квартиры в доме)
- квартира продается с полной ЧИСТОВОЙ отделкой (как на фото, только без мебели), а также кухонным гарнитуром - "Silver Style" и мебельным сетом в ванную комнату (также есть на фото в объявлении), всё входит в стоимость продажи
Таких квартир - единицы.
Звоните.
ID объекта 430850
Метро Рыбацкое
Общая S 36.51 м2
Жилая S 12.3 м2
S кухни 12.78 м2
Количество комнат 1
Этаж 23
Этажей всего 23
Балкон Есть лоджия
Информация о районе

Распределение общего объема предложений по типам объектов. Информационная сводка построена по базе данных сайта.

7 387 273
руб
средняя стоимость продажи квартиры
31 000
руб/мес
средняя стоимость аренды квартиры
Нужна помощь в выборе лучших предложений?
Похожие предложения в этом районе
Еще 11 фото
Славянская ул.
Продажа квартиры
ID: 353682Продается, с прекрасным видом в сторону Невы и Вантового моста, квартира: - удобный 18 этаж, просторный вид из окон- окна квартиры выходят на запад - вечернее солнце и закат (направление окон указано оранжевой стрелкой, а также на первом фото указано расположение квартиры в доме)- квартира...
36.79 м2
площадь
1
Комнат
Невский
район
10 000 000 руб.
271 813 руб. за м2
+7 (812) 333XXXX
Адвекс

Еще 11 фото
Славянская ул., д. 20
Продажа квартиры
ID: 1916381Просторная, теплая квартира в современном жилом комплексе комфорт- класса на живописном берегу Невы. Видовая однокомнатная квартира (евро двушка) на 13 этаже. Квартира общей площадью 53 кв. м + застекленный балкон площадью 3.8 кв. м. Комфортная планировка - кухня 16 кв. м и комната 17.9 м...
53 м2
площадь
1
Комнат
Невский
район
9 280 000 руб.
175 094 руб. за м2
+7 (812) 333XXXX
Адвекс

Еще 11 фото
Шлиссельбургский пр., д.17к2
Продажа квартиры
ID: 1915728Прямая продажа. Без обременений. Обжитый район. Рядом детский сад и 2 школы. 15 мин. пешком до метро. Без ремонта.
71.9 м2
площадь
3
Комнат
Невский
район
11 000 000 руб.
152 990 руб. за м2
+7 (812) 333XXXX
Адвекс

Еще 2 фото
Русановская ул., д.11А
Продажа квартиры
ID: 1915393Квартира, в ближайшем доме к Октябрьской набережной- ул. Русановская, дом 11. С закрытым двором, куда можно въезжать. У хозяйки есть пульт от ворот. Квартира требует ремонта (проживают строители), но с прекрасным видом и отличной двухсторонней планировкой. Остановка общественного транспор...
58.3 м2
площадь
2
Комнат
Невский
район
10 150 000 руб.
174 099 руб. за м2
+7 (812) 333XXXX
Адвекс

Вся аналитика
Статьи и аналитика рынка