Славянская ул., д. 5

Продажа квартиры
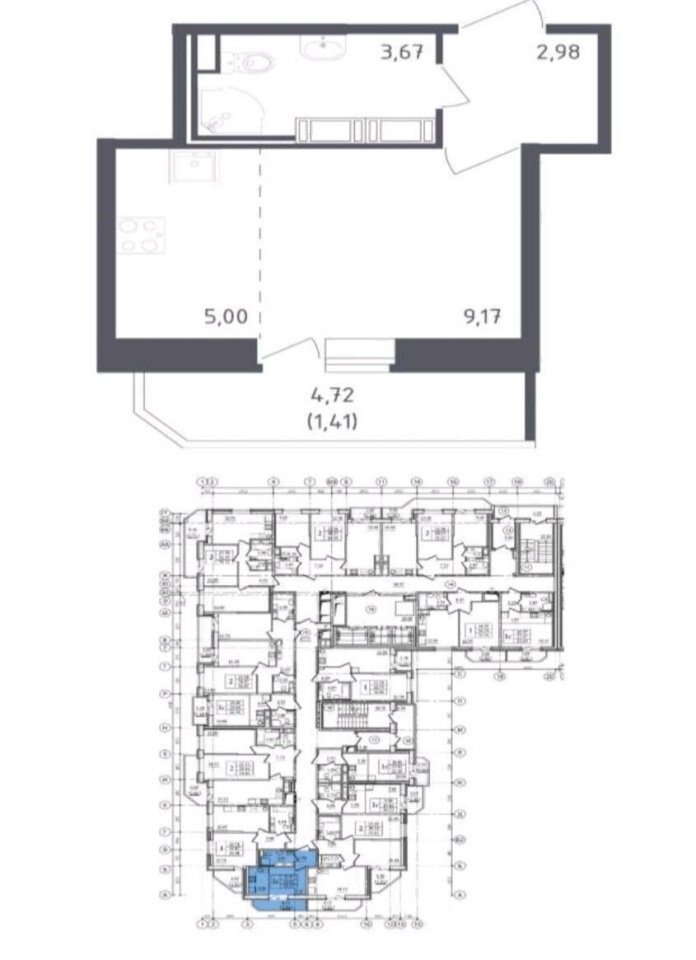
22.23 м2
площадь
Невский
район
6 900 000 руб.
310 391 руб. за м2
+7 (812) 333XXXX
Адвекс
Подробная информация
ID: 353666
Продается по переуступке студия с отличной планировкой в ЖК "Живи в Рыбацком". В квартире все продумано. Отдельно выделена зона кухни, есть большой застекленный балкон 5 метров, просторный санузел, для хранения ниша в прихожей. В стоимость входит полная чистовая отделка и мебель. Комплект кухонной мебели и сет в прихожую в подарок покупателю. Из окон открывается панорамный вид на город.
Корпус 39 находится в квартале с прекрасной панорамой на акваторию Невы. В ЖК закрытый двор без машин, современные детские площадки для всех возрастов. В парадной помещение для хранения колясок и велосипедов. Паркинг. Район с развитой инфраструктурой. рядом школы, садики, магазины, кафе, медицинские учреждения. Прогуляться можно вдоль Невы и в ближайшем парке. До метро "Рыбацкое" пешая доступность 20 минут. Рядом выезд на Кад.
Срок сдачи 2026 год.
Звоните, организуем безопасную сделку.
ID объекта 430380
Метро Рыбацкое
Общая S 22.23 м2
Жилая S 14.17 м2
Этаж 20
Этажей всего 23
Балкон Есть балкон
Информация о районе

Распределение общего объема предложений по типам объектов. Информационная сводка построена по базе данных сайта.

7 405 455
руб
средняя стоимость продажи квартиры
31 500
руб/мес
средняя стоимость аренды квартиры
Нужна помощь в выборе лучших предложений?
Похожие предложения в этом районе
Еще 14 фото
Советский пр., д. 36, к. 2, стр. 1
Продажа квартиры
ID: 1916411Предлагается к продаже однокомнатная квартира в жилом комплексе, расположенном на берегу р. Невы. Преимущества этой квартиры: - новый ЖК 2019 года постройки. - площадь квартиры 36.7 кв. м., большая кухня 10 м и комната 17м с двумя окнами, большой санузел 6.3м, застеклённая лоджия 3.8м. - ...
36.7 м2
площадь
1
Комнат
Невский
район
7 400 000 руб.
201 635 руб. за м2
+7 (812) 333XXXX
Адвекс

Еще 16 фото
Советский пр., д. 14, стр. 1
Продажа квартиры
ID: 1916289Продаётся видовая 1-к квартира в ЖК "Живи в Рыбацком" на берегу Невы. Новый благоустроенный дом, спокойные соседи. Светлая обустроенная квартира с восхитительным видом на Неву, Вантовый мост и башню Газпром. Застеклённый панорамный балкон. Просторная парадная с пандусом, 4 лифта, один из ...
35.4 м2
площадь
1
Комнат
Невский
район
7 100 000 руб.
200 565 руб. за м2
+7 (812) 333XXXX
Адвекс

Еще 4 фото
Караваевская ул., д.33к5
Продажа квартиры
ID: 1916247В продаже 2-х комнатная квартира. От метро Рыбацкое 8 мин. пешком. Квартира солнечная. Окна стеклопакеты, потолки натяжные, ламинат. В целом можно сразу заехать и жить. Три взрослых собственника. Без обременений. Прямая продажа.
40.2 м2
площадь
2
Комнат
Невский
район
7 250 000 руб.
180 348 руб. за м2
+7 (812) 333XXXX
Адвекс

Еще 6 фото
Караваевская ул., д. 38
Продажа квартиры
ID: 1916065Один собственник, документы готовы.
33.8 м2
площадь
1
Комнат
Невский
район
6 100 000 руб.
180 473 руб. за м2
+7 (812) 333XXXX
Адвекс

Еще 3 фото
Славянская ул., д. 5
Продажа квартиры
ID: 353664Продается по переуступке видовая студия в ЖК "Живи в Рыбацком" с полной чистовой отделкой и меблировкой. В стоимость входит комплект кухонной мебели и сет в ванную. Из окна квартиры открывается боковой вид на воду. Корпус 39 находится в квартале с прекрасной панорамой на акваторию Невы. В ...
22.31 м2
площадь
Невский
район
6 800 000 руб.
304 796 руб. за м2
+7 (812) 333XXXX
Адвекс

Еще 2 фото
Русановская ул., д. 18. 6
Продажа квартиры
ID: 1914685Продается однокомнатная квартира в новом доме, в уже обжитом районе, год постройки дома 2022. В квартире никто не жил, все новое, сделан хороший ремонт. Отличный вид из окон, на восток. Вся инфраструктура: школа, детские сады, магазины, кафе внутри квартала. Прямая продажа, никаких обреме...
31 м2
площадь
1
Комнат
Невский
район
6 200 000 руб.
200 000 руб. за м2
+7 (812) 333XXXX
Адвекс

Еще 14 фото
Советский пр., д. 16, стр. 1
Продажа квартиры
ID: 1914365Приглашаем вас домой. Это не просто стены, а ваше будущее пространство для жизни, наполненное уютом, светом и спокойствием. Мы с любовью обустраивали эту квартиру и хотим, чтобы она досталась тем, кто оценит её особую атмосферу. Представьте: вы на 26-м этаже. За окном — захватывающие дух ...
34.5 м2
площадь
1
Комнат
Невский
район
7 400 000 руб.
214 493 руб. за м2
+7 (812) 333XXXX
Адвекс

Еще 3 фото
Русановская ул., д. 18, к. 8, стр. 1
Продажа квартиры
ID: 1913334Продается однокомнатная квартира жк Приневский, выплаченная ипотека, один собственник. Развитая инфраструктура, поликлиника, магазины, спортивный комплекс, детские сады, застекленный балкон. Встречная покупка. От метро Ломоносовская ходит автобус до комплекса. Торг уместен. Один собственн...
35.4 м2
площадь
1
Комнат
Невский
район
7 100 000 руб.
200 565 руб. за м2
+7 (812) 333XXXX
Адвекс

Вся аналитика
Статьи и аналитика рынка