Славянская ул., д. 5

Продажа квартиры
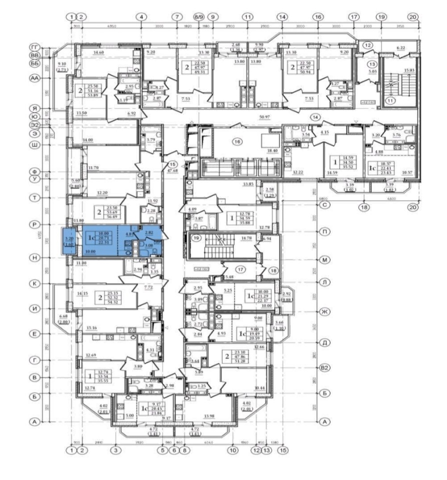
22.31 м2
площадь
Невский
район
7 000 000 руб.
313 761 руб. за м2
+7 (812) 333XXXX
Адвекс
Подробная информация
ID: 353664
Продается по переуступке видовая студия в ЖК "Живи в Рыбацком" с полной чистовой отделкой и меблировкой. В стоимость входит комплект кухонной мебели и сет в ванную. Из окна квартиры открывается боковой вид на воду. Корпус 39 находится в квартале с прекрасной панорамой на акваторию Невы. В комплексе все продумано для комфорта жителей: закрытый двор без машин, современные детские площадки для всех возрастов. В парадной помещение для хранения колясок и велосипедов. Паркинг. Район с развитой инфраструктурой. Рядом школы, садики, магазины, кафе, медицинские учреждения. Прогуляться можно вдоль Невы и в ближайшем парке. До метро " Рыбацкое" пешая доступность 20 минут. Рядом выезд на КАД. Срок сдачи 2026 год.
Звоните, организуем безопасную сделку.
ID объекта 430325
Метро Рыбацкое
Общая S 22.31 м2
Жилая S 14.81 м2
Этаж 23
Этажей всего 23
Балкон Есть лоджия
Информация о районе

Распределение общего объема предложений по типам объектов. Информационная сводка построена по базе данных сайта.

6 593 955
руб
средняя стоимость продажи квартиры
27 000
руб/мес
средняя стоимость аренды квартиры
Нужна помощь в выборе лучших предложений?
Похожие предложения в этом районе
Еще 1 фото
Славянская ул., д. 5
Продажа квартиры
ID: 353666Продается по переуступке студия с отличной планировкой в ЖК "Живи в Рыбацком". В квартире все продумано. Отдельно выделена зона кухни, есть большой застекленный балкон 5 метров, просторный санузел, для хранения ниша в прихожей. В стоимость входит полная чистовая отделка и мебель. Комплект ...
22.23 м2
площадь
Невский
район
7 100 000 руб.
319 388 руб. за м2
+7 (812) 333XXXX
Адвекс

Еще 12 фото
Русановская ул., д.11А
Продажа квартиры
ID: 1915897Внимание. Отличная квартира в удобной для проживания локации. Продаётся уютная однокомнатная квартира в современном монолитном доме 2014 года постройки. Отличная планировка, общая площадь составляет 33.2 кв. м, 15 кв. м — жилая зона и 10 кв. м — просторная кухня. Квартира расположена на 8...
33.2 м2
площадь
1
Комнат
Невский
район
6 480 000 руб.
195 181 руб. за м2
+7 (993) 070XXXX
Адвекс на Адмирала Трибуца

Русановская ул., д.19к1
Продажа квартиры
ID: 1915792Продажа квартиры с торгов. Внимательно прочитайте описание, чтобы оценить свои возможности. Квартира продается по процедуре банкротства собственника. Осмотр возможен по предварительной договоренности. Процедура торгов полностью законная и прозрачная. Покупатель защищен законом. Подходит т...
48.1 м2
площадь
2
Комнат
Невский
район
7 157 000 руб.
148 794 руб. за м2
+7 (812) 333XXXX
Адвекс

Еще 6 фото
Усть-Славянка тер, Советский пр., д. 34, к. 3, стр. 1
Продажа квартиры
ID: 1915387. Пожалуйста, пишите сообщение, свяжемся. С 26.12-12.01 не в сетиСветлая, удобная и теплая Квартира с видом на Неву и с балконом. Большое удовольствие встречать восход глядя на этот простор и водную гладь). Квартира Без отделки, начнете ремонт с чистого листа, на свой вкус и цвет. В доме ...
33.4 м2
площадь
1
Комнат
Невский
район
5 990 000 руб.
179 341 руб. за м2
+7 (812) 333XXXX
Адвекс

Еще 7 фото
Русановская ул., д.19к4
Продажа квартиры
ID: 1915392ЖК Ласточкино гнездо. Светлая и уютная квартира с хорошим ремонтом. Кухня и мебель остаётся. Зарегистрированных лиц нет. Обременений нет. Документы готовы к сделке.
36.1 м2
площадь
1
Комнат
Невский
район
7 190 000 руб.
199 169 руб. за м2
+7 (812) 333XXXX
Адвекс

Еще 5 фото
Усть-Славянка тер, Славянская ул, д. 5
Продажа квартиры
ID: 353635У Вашему вниманию предлагается квартира студия, с чистовой отделкой и мебелью, находящаяся в доме комфорт класса, в 39 корпусе ЖК "Живи в рыбацком". Срок сдачи 2 кв. 2026 г. Идеальный вариант для тех, кто мечтает просыпаться с видом на город, ценит удобную транспортную доступность и соврем...
21 м2
площадь
Невский
район
5 950 000 руб.
283 333 руб. за м2
+7 (812) 333XXXX
Адвекс

Еще 16 фото
Советский пр., д. 16, стр. 1
Продажа квартиры
ID: 1914365Приглашаем вас домой. Это не просто стены, а ваше будущее пространство для жизни, наполненное уютом, светом и спокойствием. Мы с любовью обустраивали эту квартиру и хотим, чтобы она досталась тем, кто оценит её особую атмосферу. Представьте: вы на 26-м этаже. За окном — захватывающие дух ...
34.5 м2
площадь
1
Комнат
Невский
район
8 000 000 руб.
231 884 руб. за м2
+7 (812) 333XXXX
Адвекс

Еще 3 фото
Русановская ул., д. 18, к. 8, стр. 1
Продажа квартиры
ID: 1913334Продается однокомнатная квартира жк Приневский, выплаченная ипотека, один собственник. Развитая инфраструктура, поликлиника, магазины, спортивный комплекс, детские сады, застекленный балкон. Встречная покупка. От метро Ломоносовская ходит автобус до комплекса. Торг уместен. Один собственн...
35.4 м2
площадь
1
Комнат
Невский
район
7 100 000 руб.
200 565 руб. за м2
+7 (812) 333XXXX
Адвекс

Вся аналитика
Статьи и аналитика рынка