поселок Ленинское, Мира улица, д. 10

Продажа дома
500.2 м2
площадь
8
Комнат
30.2 соток
площадь участка
Выборгский
район
26 535 333 руб.
53 049 руб. за м2
+7 (812) 455XXXX
Агент
Подробная информация
Продается через электронные торги на площадке ЭТП ГПБ Индивидуальный жило дом площадью 500.2 кв. м., расположенный по адресу:
ЛО, Выборгский район, МО "Первомайское сельское поселение", пос. Ленинское, улица Мира, д. 10
Год построки: 2019
Кадастровый номер: 47: 01: 1704003: 396
Дом распложен на земельном участке площадью 3022 +/- 38 кв. м.
Категория земель: Земли населенных пунктов
Виды разрешенного использования: под строительство малоэтажной коттеджной застройки.
Кадастровый номер: 47: 01: 1704003: 80
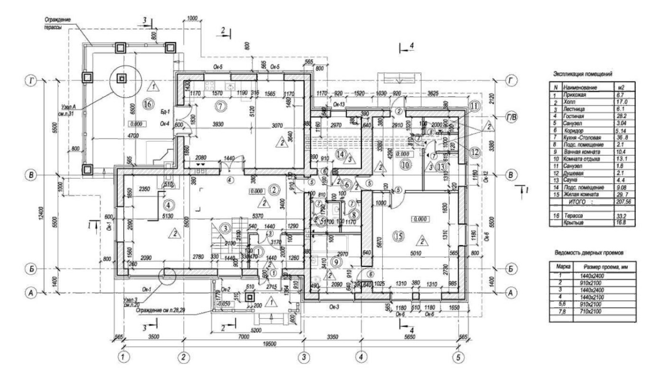
Характеристики и описание объекта
Жилой дом:
Цоколь здания облицован путиловским камнем; Горизонтальная гидроизоляция стен - цементно-песчаный раствор 1: 2, толщиной 35 мм с водостойкими добавками из жидкого стекла;
Наружные стены 3-х слойные - кирпич пустотелый строительный, минераловатные плиты - 75 мм, воздушная прослойка 25 мм, лицевой кирпич пустотелый;
Внутренние перегородки - гипсобетонные, пазогребные, толщиной 100 мм;
Кровля - мягкая черепица по деревянной обрешётке;
Этажность: 2, мансарда
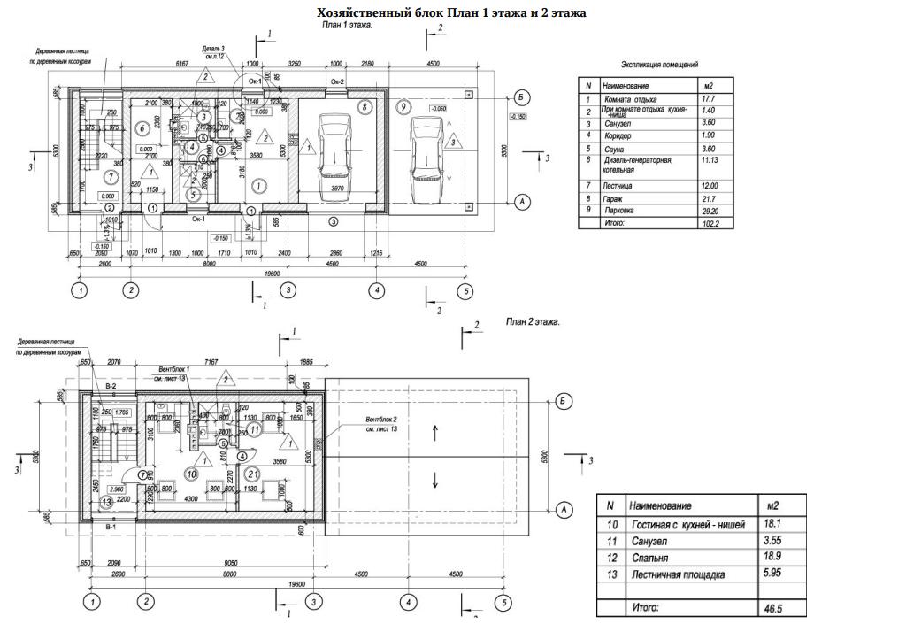
Хозяйственны блок:
Цоколь здания облицован искусственным камнем;
Горизонтальная гидроизоляция стен - цементно-песчаный раствор 1: 2, толщиной 35 мм с водостойкими добавками из жидкого стекла;
Наружные стены 3-х слойные - кирпич пустотелый строительный, минераловатные плиты - 80 мм, воздушная прослойка 20 мм, лицевой кирпич пустотелый;
Внутренние перегородки - гипсобетонные, пазогребные, толщиной 100 мм;
Кровля - гонтовые плитки;
Этажность: 2.
ID объекта 431218
S участка 30.2 соток
Общая S 500.2 м2
Количество комнат 8
Этажей 3
Состояние ремонта Хорошее
Информация о районе

Распределение общего объема предложений по типам объектов. Информационная сводка построена по базе данных сайта.

28 926 799
руб
средняя стоимость продажи дома
129 750
руб/мес
средняя стоимость аренды дома
Нужна помощь в выборе лучших предложений?
Похожие предложения в этом районе
Еще 18 фото
Ленинское, д.46
Продажа дома
ID: 312476Вашему вниманию предлагаем оазис тишины, спокойствия и комфорта в окружении леса, недалеко от цивилизации - участок 11.53 сотки с 2-мя домами в коттеджном поселке «Золотая роща». Идеально подойдёт для любящей семьи и их родителей. Звоните, буду рада ответить на ваши вопросы. Сообщения дохо...
144 м2
площадь
11.53 соток
площадь участка
Выборгский
район
27 000 000 руб.
187 500 руб. за м2
+7 (812) 333XXXX
Адвекс

Еще 11 фото
Первомайское
Продажа дома
ID: 310566ДОМ-КВАРТИРА 40 мин от города, требует такого же простого ухода, как и квартира в новостройке - идеальный вариант для желающих комфортной городской жизни на природе. Планировка есть в фото. Продаётся дом-квартира, построенная из CLT панелей — это Швейцарско-Австрийская технология для плате...
120 м2
площадь
20 соток
площадь участка
Выборгский
район
29 500 000 руб.
245 833 руб. за м2
+7 (812) 333XXXX
Адвекс

Еще 34 фото
Большая Медведица кп, д. 106
Продажа дома
ID: 312360. В указанную сумму гостевой дом + баня будет отделаны в том же стиле, что и основной (плитка/фасад), вокруг строении будет залита отмостка, положена тротуарная плитка на подъезде к дому, на крышу хозблока будет уложена черепица. Если вы желаете купить в виде указанном на фото цена будет н...
168.5 м2
площадь
10.2 соток
площадь участка
Выборгский
район
28 000 000 руб.
166 172 руб. за м2
+7 (812) 333XXXX
Адвекс

Еще 24 фото
Выборг, Уральская ул., д.23
Продажа дома
ID: 312275Стильный дом в замковом стиле с продуманной планировкой на участке 12 соток в черте г. Выборг. О ДОМЕ. Двухэтажный теплый, светлый кирпичный дом 2010 года постройки не требующий никаких вложений. Общая площадь двух этажей 317.5 кв. м, не учтенный в техническом паспорте сухой в хорошем сост...
317.5 м2
площадь
12 соток
площадь участка
Выборгский
район
27 000 000 руб.
85 039 руб. за м2
+7 (812) 333XXXX
Адвекс

Еще 5 фото
Владимировка
Продажа дома
ID: 311354Продажа загородного дома, в уникальном месте-на берегу оз. КРАСАВИЦА. (Полянское сельское поселение). Шикарный панорамный вид с каждой комнаты дома на озеро, спуск к воде, свой пирс. В основе дома монолитная плита, стены-металлический каркас, обшит террасной доской с утеплением, кровля-мет...
123 м2
площадь
15 соток
площадь участка
Выборгский
район
27 000 000 руб.
219 512 руб. за м2
+7 (812) 333XXXX
Адвекс

Еще 45 фото
Первомайское
Продажа дома
ID: 310566Этот ДОМ-КВАРТИРА стоит своих денег. Продаётся дом-квартира, построенная из CLT панелей — это Швейцарско-Австрийская технология для платежеспособного населения. CLT панели — это деревянный монолит (в Европе и Канаде технология внесена в стандарты инженерного проектирования)Дерево с характе...
120 м2
площадь
8.71 соток
площадь участка
Выборгский
район
28 000 000 руб.
233 333 руб. за м2
+7 (812) 333XXXX
Адвекс

Еще 13 фото
Рощино, Полевая ул.
Продажа дома
ID: 310308В п. Рощино Выборгского района Ленинградской области на улице Полевая предлагается к продаже 2-этажный жилой дом площадью 235.9 кв. м. на земельном участке 12 соток, относящимся к землям населенных пунктов. Дом построен в 2005 году. Санузел метров 9.4 м. кв, ванна, душ, септик, камин, эл/в...
235 м2
площадь
12 соток
площадь участка
Выборгский
район
26 700 000 руб.
113 617 руб. за м2
+7 (812) 333XXXX
Адвекс

Еще 19 фото
Рощино пос., Ахматовой ул.
Продажа дома
ID: 310048Продается дом из клееного бруса площадью 200 кв. м в окружении вековых сосен в п. Рощино. Дом полностью готов к проживанию, сделана внутренняя отделка, установлена сантехника и освещение. Этот дом подходит под льготную ипотеку. Дом: построен из экологически чистого материала, имеет удачную...
200 м2
площадь
12 соток
площадь участка
Выборгский
район
25 000 000 руб.
125 000 руб. за м2
+7 (812) 333XXXX
Адвекс

Вся аналитика
Статьи и аналитика рынка