деревня Пудомяги, Сельская улица, д. 35А

Продажа дома
186.5 м2
площадь
5
Комнат
10 соток
площадь участка
Гатчинский
район
10 900 000 руб.
58 445 руб. за м2
+7 (981) 080XXXX
Агент
Подробная информация
Недалеко от г. Павловска, Пушкина в деревне Пудомяги по адресу: улица Сельская, д. 35 продается жилой 2-этажный дом из газобетона общей площадью 186.5 кв. м на земельном участке 10 соток.
Земли населенных пунктов. Вид разрешенного использования - индивидуальные жилые дома.
Дом - жилой. 2024 год постройки.
Деревня - гаЗИФИЦИРОВАНА. Магистральный газ заведен на улицу.
Фундамент - бетонная плита. Крыша - металлочерепица. Фасад покрыт декоративной штукатуркой КОРОЕД и окрашен. Межэтажные перекрытия - плита.
Скважина, анаэробный септик. Отопление – электрокотел. Выделено 15 кВт.
Теплый пол.
Дом продается под чистовую отделку.
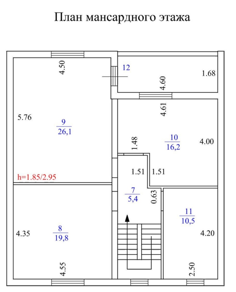
Метраж:
1 этаж: кухня - 13.9 кв. м, холл - 17 кв. м., комнаты - 17.1 + 28.8 кв. м,
совмещенный санузел – 7.9 кв. м., котельная - 6.4 кв. м.
2 этаж: холл - 5.4 кв. м., комнаты - 19.8 + 26.1 + 16.2 кв. м., совмещенный санузел - 10.5 кв. м., лоджия 7.7 кв. м.
Площадь помещений - 176.8 кв. м., площадь здания - 186.5 кв. м.
Удобная транспортная доступность - автобусная остановка в 400 м от дома.
2 железнодорожные станции – Кобралово и Антропшино. Общественный транспорт - до Павловска, Гатчины, Кобралово, станции метро Купчино и Московская. Маршруты - 478, 527, 529, 545А, К545. Детский сад, школа, амбулатория - 5 минут транспортом. Расположенный рядом город Коммунар имеет всю необходимую инфраструктуру - магазины, поликлиники, Мфц, банк, бассейн, детские образовательные и развлекательные учреждения.
Полная стоимость в договоре. НИКАКИХ ОБРЕМЕНЕНИЙ.
ID объекта 430635
S участка 10 соток
Общая S 186.5 м2
Количество комнат 5
Этажей 2
Состояние ремонта Требует ремонта
Электричество Да
Водоснабжение Скважина
Канализация Септик
Отопление Есть
Информация о районе

Распределение общего объема предложений по типам объектов. Информационная сводка построена по базе данных сайта.

9 015 440
руб
средняя стоимость продажи дома
57 500
руб/мес
средняя стоимость аренды дома
Нужна помощь в выборе лучших предложений?
Похожие предложения в этом районе
Еще 11 фото
Свое Место СНТ, Верная ул., д. 20
Продажа дома
ID: 312096Barnhouse среди сосен: Ваше идеальное лето начнется здесь. Компания «Адвекс» представляет уникальное предложение в СНТ «Свое Место» (Гатчинский район). Это дом, построенный инженером-строителем для себя — случай, когда надежность конструкции важнее маркетинга. Почему нужно покупать именно ...
124.5 м2
площадь
6 соток
площадь участка
Гатчинский
район
12 400 000 руб.
99 598 руб. за м2
+7 (812) 333XXXX
Адвекс

Еще 14 фото
Кямяря Дачи массив, д. 44
Продажа дома
ID: 312105Уютный дом в удивительно удобном расположении относительно Гатчины (10 км) и Санкт-Петербурга, с прекрасной доступностью природы. + Теплый гостевой домик 24 кв. м с отдельной скважиной и септикомМассив «Кямяря Дачи»ДОМ площадью 130, 1 кв. м., построен в 2021 годуДНП (дачное некоммерческое ...
130.1 м2
площадь
6.5 соток
площадь участка
Гатчинский
район
11 900 000 руб.
91 468 руб. за м2
+7 (812) 333XXXX
Адвекс

Еще 9 фото
Вырица, Суворовский пр., д.104
Продажа дома
ID: 310426Продаются два зимних уютных домика на одном участке для круглогодичного проживания в поселке Вырица Гатчинского района. Один - 2021 г. п. площадью 70 кв. м (2комнаты, кухня, туалет, душевая, сауна, веранда) Отопление: электрические конвекторы. Построен из пеноблоков, снаружи отделан сайдин...
83 м2
площадь
7.3 соток
площадь участка
Гатчинский
район
12 000 000 руб.
144 578 руб. за м2
+7 (812) 333XXXX
Адвекс

Еще 4 фото
Пустошка
Продажа дома
ID: 311864Уютный дом в современном стиле, строится с применением высокоэффективных теплосберегающих технологий в новом коттеджном посёлке "Гатчина Парк". В доме: кухня-гостиная 31 кв. м.,. мастер-спальня с гардеробной и санузлом, спальня или детская с гардеробной, два санузла, терраса 21 кв. м. (не ...
90 м2
площадь
6 соток
площадь участка
Гатчинский
район
11 000 000 руб.
122 222 руб. за м2
+7 (812) 333XXXX
Адвекс

Еще 12 фото
Финская деревня юг КП
Продажа дома
ID: 311615Продается дом 120 кв. м с участком в КП ФИHCKAЯ ДEPEВНЯ ЮГДом из газоблока в стиле Барнхаус с потолками 4.5 мМонолитная плита 300 ммГазоблок 300 ммУтепление 50 ммСкважина 30 мПерерабатывающая станцияВсе коммуникации заведены в дом, теплый полУчасток распланирован плодородным слоем земли по...
120 м2
площадь
7 соток
площадь участка
Гатчинский
район
9 450 000 руб.
78 750 руб. за м2
+7 (812) 333XXXX
Адвекс

Еще 12 фото
село Рождествено, муниципальный округ, село Рождествено
Продажа дома
Ленинградская область, Гатчинский муниципальный округ, село Рождествено. Редкое предложение. В старинном селе, в конце улицы, петляющей вдоль реки Оредеж, на участке 20 соток недостроенный 2-этажный дом 9.5х7.3м из газобетонных блоков c полноценным цокольным этажом. Фундамент бетонный ленточный, кро...
90 м2
площадь
20 соток
площадь участка
Гатчинский
район
9 900 000 руб.
110 000 руб. за м2
+7 (911) 993XXXX
Прогаль

Еще 9 фото
Химози деревня, Немецкая слобода ДНТ, ул. Дачная
Продажа дома
Продается новый деревянный коттедж, полностью готов к проживанию. В строительстве применялись экологически чистые строительные материалы, полностью высушенный брус, высококачественные отделочные материалы. В гостиной и спальнях установлено панорамное остекление. Скважина с питьевой водой, септик, эл...
12.4 м2
площадь
1
Комнат
Гатчинский
район
12 200 000 руб.
983 871 руб. за м2
+7 (921) 964XXXX
Олег Анатольевич Гезин

Еще 22 фото
Виркино
Продажа дома
ID: 310673Продается одноэтажный дом в коттеджном поселке Ново-Виркино. Дом полностью готов для постоянного проживания. Кухня оборудована мебелью и техникой. Санузлы полностью оснащены. Участок сухой, выровнен, посеян газон, плодородный слой 50см. Река, свежий воздух, удобная транспортная доступность...
105 м2
площадь
9 соток
площадь участка
Гатчинский
район
10 400 000 руб.
99 048 руб. за м2
+7 (812) 333XXXX
Адвекс

Вся аналитика
Статьи и аналитика рынка