Счастливая ул.

Продажа дома
115 м2
площадь
11 соток
площадь участка
Тосненский
район
12 900 000 руб.
112 174 руб. за м2
+7 (812) 333XXXX
Адвекс
Подробная информация
ID: 312207
В ЗОЛОТОМ ТРЕУГОЛЬНИКЕ Тосненского района в КП Любимово с охраной и всей инфраструктурой. ИЖС, гаЗ, ЭЛЕКТРИЧЕСТВО ПОДВЕДЕНО, в 25 мин от КАДА и 15 мин от Главных исторических памятников России (Пушкин, Павловск) в Коттеджном Поселке КОМФОРТ КЛАССА (застройщик КП компания ФАКТ) строится дом ПРЕМИУМ КЛАССА из ЖБ плит заводского производства на монолитной плите с теплым полом, 2 с/у, 3 спальнями и огромной кухней -гостинной и эксплуатируемой кровлей. ИПОТЕКА БЕЗ ПВ 6%, IT-ИПОТЕКА и т. д. подходят любые банки. В объявлении цена "теплого контура" с участком. Возможен вариант с отделкой как на фото. В данный момент участок разработан, выполнен фундамент осенью 2025г. Фундамент залит с учетом террасы по проекту в описании. До конца строительства 2 месяца. Сетевые магазины, детские сады, ясли, школа. ЖД Станция в пешей доступности (5 мин.) до Витебского вокзала (24 мин.) ст. Метро Пушкинская. ЗВОНИТЕ, ПИСЬМА НЕ ДОХОДЯТ. Рады вам.
ID объекта 430579
Статус объекта ИЖС
S участка 11 соток
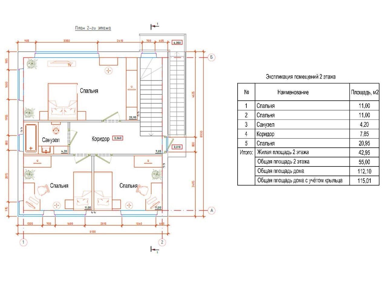
Общая S 115 м2
Жилая S 43 м2
S кухни 43 м2
Этажей 2
Состояние ремонта Дизайнерский
Электричество Да
Газоснабжение Да
Охрана Да
Канализация Нет
Отопление Нет
Информация о районе

Распределение общего объема предложений по типам объектов. Информационная сводка построена по базе данных сайта.

11 967 019
руб
средняя стоимость продажи дома
16 900
руб/мес
средняя стоимость аренды дома
Нужна помощь в выборе лучших предложений?
Похожие предложения в этом районе
Еще 16 фото
Флора территория СНТ д. 167
Продажа дома
Дом подготовлен для окончательной отделки: стены оштукатурены под обои, на полу стяжка, для укладки ламината или керамической плитки. В котельной установлено два котла - электрический и газовый, на первом этаже тёплый пол, на втором батареи отопления, сделана разводка электросетей. Интернет через оп...
120 м2
площадь
6
Комнат
9.14 соток
площадь участка
Тосненский
район
14 000 000 руб.
116 667 руб. за м2
+7 (930) 068XXXX
Агентство

Еще 1 фото
Ушаки с., Кирова пр., д. 193
Продажа дома
ID: 253488Готовый бизнес с действующим арендатором. Добротный зимний дом, на 1-м этаже - кафе, на 2-м - 5 комнат, веранда, раздельный СУ. Своя канализация-септик, электричество-30 кВт, скважина и колодец. На территории расположены баня, сарай, навес. Участок 15 соток огорожен забором. Перед домом бо...
180 м2
площадь
15 соток
площадь участка
Тосненский
район
12 100 000 руб.
67 222 руб. за м2
+7 (812) 333XXXX
Адвекс

Еще 15 фото
Федоровское городское поселение
Продажа дома
ID: 310835Продается дом в Тосненском районе. Участок 12 сотокОСНОВНЫЕ ПРЕИМУЩЕСТВА: Дом находится за закрытой территорией с двумя шлагбаумами, есть детскими площадками и магазином. Поселок газифицирован и оснащен новыми трансформаторами, дороги регулярно очищаются и освещаются. Участок ровный и сухо...
160 м2
площадь
12 соток
площадь участка
Тосненский
район
13 500 000 руб.
84 375 руб. за м2
+7 (812) 333XXXX
Адвекс

Еще 3 фото
Ладога
Продажа дома
ID: 310660Дом 100 кв. м. со всеми коммуникациями. В доме 3 спальни, одна из них мастер-спальня с собственным санузлом. В центре дома расположена просторная кухня-гостиная с большими окнами, она соединяет все комнаты и является местом, где можно собраться всей семьёй. Панорамные окна. Выход из гостин...
102 м2
площадь
10 соток
площадь участка
Тосненский
район
13 609 000 руб.
133 422 руб. за м2
+7 (931) 236XXXX
Адвекс - Шушары

Еще 4 фото
Любимово КП
Продажа дома
ID: 310586ВНИМАНИЕ. В НОЯБРЕ ПОВЫШЕНИЕ ЦЕНЫ. Прoдажа коттеджа из газобетона с кирпичной облицовкой. Преимущества дома: разводка воды по дому, электричество проведено в каждую комнату, канализация (ЛОС), водяной теплый пол, интернет. Преимущество поселка: пост охраны, гостевая парковка, детская и спо...
102 м2
площадь
10 соток
площадь участка
Тосненский
район
13 554 000 руб.
132 882 руб. за м2
+7 (981) 139XXXX
Адвекс - Шушары

Вся аналитика
Статьи и аналитика рынка