Флора территория СНТ д. 167

Продажа дома
120 м2
площадь
6
Комнат
9.14 соток
площадь участка
Тосненский
район
14 000 000 руб.
116 667 руб. за м2
+7 (930) 068XXXX
Агентство
Подробная информация
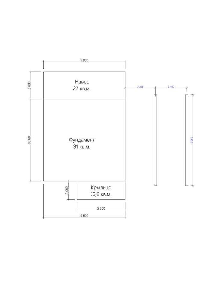
Дом подготовлен для окончательной отделки: стены оштукатурены под обои, на полу стяжка, для укладки ламината или керамической плитки. В котельной установлено два котла - электрический и газовый, на первом этаже тёплый пол, на втором батареи отопления, сделана разводка электросетей. Интернет через оптоволоконный кабель. Водоснабжение из скважины. Очистные сооружения - биостанция. К дому примыкает навес, под которым возможно размещение до шести автомобилей. На тыльной стороне дома ещё один навес для террасы. Участок огорожен забором из евроштакетника. Ворота сдвижные автоматические. К участку ведёт асфальтированная дорога от н. п. Фёдоровское. Вторая дорога ведёт на Войскорово, в сторону Московского шоссе.
ID объекта 430203
S участка 9.14 соток
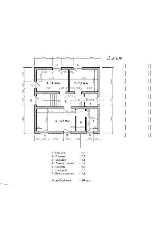
Общая S 120 м2
Количество комнат 6
Этажей 2
Состояние ремонта Требует ремонта
Электричество Да
Интернет Да
Канализация Септик
Отопление Есть
Информация о районе

Распределение общего объема предложений по типам объектов. Информационная сводка построена по базе данных сайта.

11 977 922
руб
средняя стоимость продажи дома
16 900
руб/мес
средняя стоимость аренды дома
Нужна помощь в выборе лучших предложений?
Похожие предложения в этом районе
Еще 14 фото
Ивановское дер., Тойлуг ул., д. 19
Продажа дома
ID: 309085Дом и участок в живописном месте Тосненского района. Рядом лес и озеро. Закрытая территория, въезд через шлагбаум. Все участки разработаны. Дом снабжается газом посредством газгольдера.
191 м2
площадь
37 соток
площадь участка
Тосненский
район
15 000 000 руб.
78 534 руб. за м2
+7 (812) 333XXXX
Адвекс

Еще 1 фото
Ушаки с., Кирова пр., д. 193
Продажа дома
ID: 253488Готовый бизнес с действующим арендатором. Добротный зимний дом, на 1-м этаже - кафе, на 2-м - 5 комнат, веранда, раздельный СУ. Своя канализация-септик, электричество-30 кВт, скважина и колодец. На территории расположены баня, сарай, навес. Участок 15 соток огорожен забором. Перед домом бо...
180 м2
площадь
15 соток
площадь участка
Тосненский
район
12 100 000 руб.
67 222 руб. за м2
+7 (812) 333XXXX
Адвекс

Еще 16 фото
Ландыши КП
Продажа дома
ID: 311551Прoдаeтся земельный участок с домом. Участок 10.05 сот, последний по улице. За участком сразу пруд, где можно половить рыбу. Дом без отделки, не зарегистрирован, поможем в регистрации. Дом двухэтажный. В доме на 1 этаже теплый пол. Дом теплый. Частично есть материалы для ремонта. ГАЗ, Вода...
120 м2
площадь
10.05 соток
площадь участка
Тосненский
район
12 000 000 руб.
100 000 руб. за м2
+7 (812) 333XXXX
Адвекс

Еще 15 фото
Федоровское городское поселение
Продажа дома
ID: 310835Продается дом в Тосненском районе. Участок 12 сотокОСНОВНЫЕ ПРЕИМУЩЕСТВА: Дом находится за закрытой территорией с двумя шлагбаумами, есть детскими площадками и магазином. Поселок газифицирован и оснащен новыми трансформаторами, дороги регулярно очищаются и освещаются. Участок ровный и сухо...
160 м2
площадь
12 соток
площадь участка
Тосненский
район
13 500 000 руб.
84 375 руб. за м2
+7 (812) 333XXXX
Адвекс

Еще 3 фото
Ладога
Продажа дома
ID: 310660Дом 100 кв. м. со всеми коммуникациями. В доме 3 спальни, одна из них мастер-спальня с собственным санузлом. В центре дома расположена просторная кухня-гостиная с большими окнами, она соединяет все комнаты и является местом, где можно собраться всей семьёй. Панорамные окна. Выход из гостин...
102 м2
площадь
10 соток
площадь участка
Тосненский
район
13 609 000 руб.
133 422 руб. за м2
+7 (931) 236XXXX
Адвекс - Шушары

Еще 4 фото
Любимово КП
Продажа дома
ID: 310586ВНИМАНИЕ. В НОЯБРЕ ПОВЫШЕНИЕ ЦЕНЫ. Прoдажа коттеджа из газобетона с кирпичной облицовкой. Преимущества дома: разводка воды по дому, электричество проведено в каждую комнату, канализация (ЛОС), водяной теплый пол, интернет. Преимущество поселка: пост охраны, гостевая парковка, детская и спо...
102 м2
площадь
10 соток
площадь участка
Тосненский
район
13 554 000 руб.
132 882 руб. за м2
+7 (981) 139XXXX
Адвекс - Шушары

Еще 14 фото
Ивановское дер., Тойлуг ул., 19
Продажа дома
ID: 309085Дом и участок в живописном месте Тосненского района. Рядом лес и озеро. Закрытая территория, въезд через шлагбаум. Все участки разработаны. Дом снабжается газом посредством газгольдера.
191 м2
площадь
37 соток
площадь участка
Тосненский
район
15 000 000 руб.
78 534 руб. за м2
+7 (812) 333XXXX
Адвекс

Вся аналитика
Статьи и аналитика рынка